Modelo
OPTS15
Marca
Xilin
Montacargas pasillo angosto
Compartir este equipo

Ventajas

  • Diseñado con estructura de soporte de 3 puntos, baja gravedad central, gran estabilidad de dirección y pequeño radio de giro.
  • 2 juegos de sistema de regeneración de energía para ahorrar energía y reducir el costo de forma independiente.
  • El mástil de elevación con alta resistencia a la torsión levanta el exceso de carga y reduce su temblor.
  • La tecnología de control de conducción de CA completa proporciona una potencia más fuerte y una mayor eficiencia.
  • El sistema de gestión inteligente y el sistema CAN-Bus pueden satisfacer diversas necesidades, haciendo que el camión sea seguro y confiable.
  • La tecnología de control de múltiples ejes promueve la eficiencia del trabajo.
  • La tecnología de control de auto-equilibrio con alta gravedad central sobre la carga muestra una excelente estabilidad del camión.
  • El control de interbloqueo entre la altura y la velocidad durante el viaje asegura la estabilidad dinámica del camión.
  • El sistema de alarma de seguridad de varios niveles incluye un sensor láser anticolisión, parada de emergencia, alarmas audibles y visibles para garantizar la seguridad tanto del personal como de la maquinaria.
  • Mango ergonómico que facilita la operación. Grupo de instrumentos LCD potente y multifuncional en el medio del puente de operaciones.
  • Adopte un puente de operación con ángulo de inclinación y altura ajustables para alcanzar la posición ideal del operador ajustando el asiento hacia adelante y hacia atrás.
  • Rueda motriz de marca importada y conocida, válvula de control EM, controlador, contactor, potenciómetro de dirección, etc.
  • 3 modos de velocidad: lento, medio y rápido son opcionales para diferentes condiciones de trabajo.
  • El sistema de diagnóstico a bordo garantiza un mantenimiento relevante y una reparación rápida.

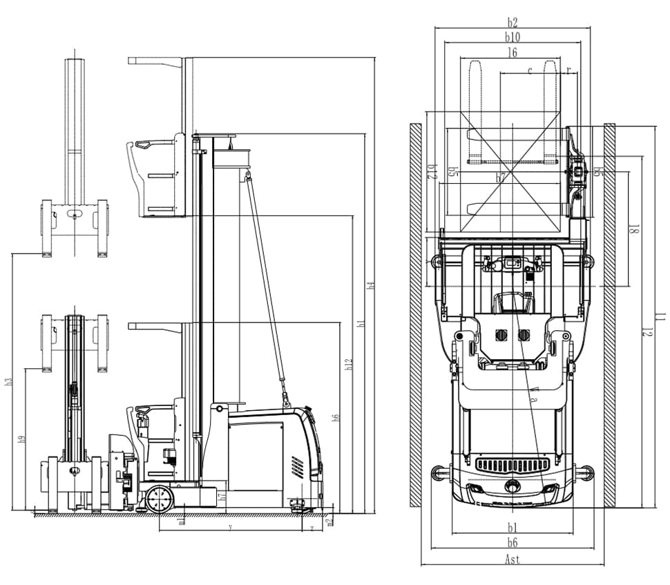
Especificaciones Técnicas

Modelo 0PTS15
Capacidad de carga / carga nometroetroinal Q (kg) 1500
Distancia del centro de carga c (mm) 600
Distancia de carga, centro del eje motriz a la horquilla x (mm) 500 ± 10
Distancia entre ejes y (mm) 1928 ± 20
Distancia del centro de la rueda motriz a la parte trasera z (mm) 280
Peso de servicio (con Batería) kg 8805
Carga por eje, con carga delantera / trasera kg 8090/2215
Carga por eje, sin carga delante / detrás kg 5280/3495
Tamaño de neumático delantero PU 380 * 192
Tamaño de neumático trasero PU 400 * 160
Número de ruedas delanteras / traseras (x = rueda motriz) 2 / 1x
Track wdith, frente B 10 (mm) 1362 ± 10
Altura del mástil rebajado (mástil dúplex) h 1 (mm) 5498 ± 20
Altura de elevación h 3 (mm) 8280
Altura total (mástil extendido) h 4 (mm) 10450 ± 20
Altura del techo protector h 6 (mm) 2064 ± 20
Altura de la plataforma de pie h 7 (mm) 440 ± 10
Altura de elevación auxiliar h 9 (mm) 1740
Altura de la plataforma de pie después de la elevación h 12 (mm) 8700 ± 20
Longitud total (sin carga) l 1 (mm) 3805 ± 20
Longitud hasta la cara de las horquillas l 2 (mm) 3510 ± 20
Ancho total B 1 /B 2 (mm) 1210/1555
Dimensiones de la horquilla s / e / l (mm) 40 * 120 * 950
Carro de horquilla ISO2328, clase / tipo A, B 2 / B
Ancho del carro de la horquilla B 3 (mm) 908
Ancho soBre horquillas B 5 (mm) 807
Ancho a través de los rodillos guía B 6 (mm) 1630
Alcance, lateral B 7 (mm) 1320 ± 20
Alcance lateral a la distancia de la línea central B 8 (mm) 480
Distancia al suelo, cargada, debajo del mástil m 1 (mm) 80
Distancia al suelo, centro de la distancia entre ejes m 2 (mm) 80
Ancho de pasillo de palet 800x1200 A st (mm) 1650
Ancho de pasillo del palet 1000x1200 A st (mm) 1650
Radio de giro w a (mm) 2280 ± 20
Distancia de pivote de rotación del eje delantero a la horquilla l 8 (mm) 1150
Altura de elevación total h 3 h9 (mm) 10020
Max. altura de recogida h 12 1600 (mm) 10300 ± 20
Distancia del centro de rotación de la horquilla al voladizo delantero l 8 -x (mm) 650
Ancho palet b 12 (mm) 1200
Longitud del palet l6 (mm) 1000
Ancho neto de la entrada de la cabina mm 420
La altura interior de la cabina. mm 2110 ± 20
Ancho total de la cabina b 9 (mm) 1430 ± 10
Ancho del carro de alcance giratorio b 14 ( mm) 1400
Ancho voladizo l 10 (mm) 175
Distancia desde el pivote de rotación de la horquilla hasta el carro de la horquilla r (mm) 150
Velocidad de desplazamiento, con / sin carga km / h 8.5 / 8.5
Velocidad de elevación, cargada / descargada mm / s 180/200
Velocidad de descenso, cargada / descargada mm / s 260/240
Alcance la velocidad, cargada / descargada mm / s 190/200
Freno de servicio Regenerador
Freno de mano Fuerza de resorte electromagnético
Voltaje de la batería, capacidad nominal K 5 V / Ah 80/560
Peso de la batería kg 1480 (1450-1510)
Nivel de sonido en el oído del conductor según EN12053 Db (A) 68
Imagen de soporte
Imagen de soporte
Imagen de soporte
¿Interesado en este equipo?

Solicita más información

Contáctanos para obtener más detalles sobre este equipo, solicitar una cotización o agendar una demostración.