Modelo
SDJAS500 / SDJAS1000
Marca
Xilin
Apilador manual
Compartir este equipo

Ventajas

  • El ancho de las patas a horcajadas alcanza los 1300 mm (500 kg) y los 1250 mm (1000 kg).
  • Altura de elevación de 1500-1600mm.
  • Con horquillas forjadas ajustables.
  • Mástil de acero de alta calidad que garantiza rigidez y durabilidad.
  • Las bombas de alta eficiencia facilitan la operación del control.
  • La función de elevación controlada con el pie y la mano permite al operador trabajar sin tener que realizar movimientos corporales extremos.
  • La rejilla metálica protege al usuario de las cadenas de elevación.
  • Con protector de rueda de seguridad y sistema de freno para garantizar la seguridad durante el funcionamiento.

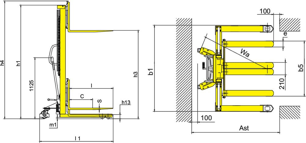
Especificaciones Técnicas

Modelo SDJAS 500 SDJAS 1000
Capacidad de carga / carga nominal Q (kg) 500 1000
Distancia del centro de carga c (mm) 500 500
Altura de la horquilla, bajada h13 (mm) 70 70
Altura, mástil bajado h1 (mm) 2000 2050
Altura máxima de elevación h3 (mm) 1600 1600
Altura, mástil extendido h4 (mm) 2100 2155
Longitud total l1 (mm) 1340/1600 1300/1560
Ancho total b1 (mm) 1525 1475
Dimensiones de la horquilla s / e / l (mm) 48/100/800 (1060) 30/100/800 (1060)
Ancho total de las horquillas b5 (mm) 745 950
Distancia al suelo, cargada, debajo del mástil m1 (mm) 25 25
Ancho de pasillo para palets 1000x1200 transversalmente Ast (mm) 1975 1975
Ancho de pasillo para palets 800x1200 longitudinalmente Ast (mm) 1915 1915
Radio de giro Wa (mm) 1200 1200
Velocidad de elevación, cargada / descargada mm / tiempo 25 25
Velocidad de descenso, cargada / descargada mm / s Control manual Control manual
Peso de servicio kg 223 294
Imagen de soporte
¿Interesado en este equipo?

Solicita más información

Contáctanos para obtener más detalles sobre este equipo, solicitar una cotización o agendar una demostración.