Modelo
CTDR10 / CTDR12 / CTDR15
Marca
Xilin
Apiladores eléctricos
Compartir este equipo

Ventajas

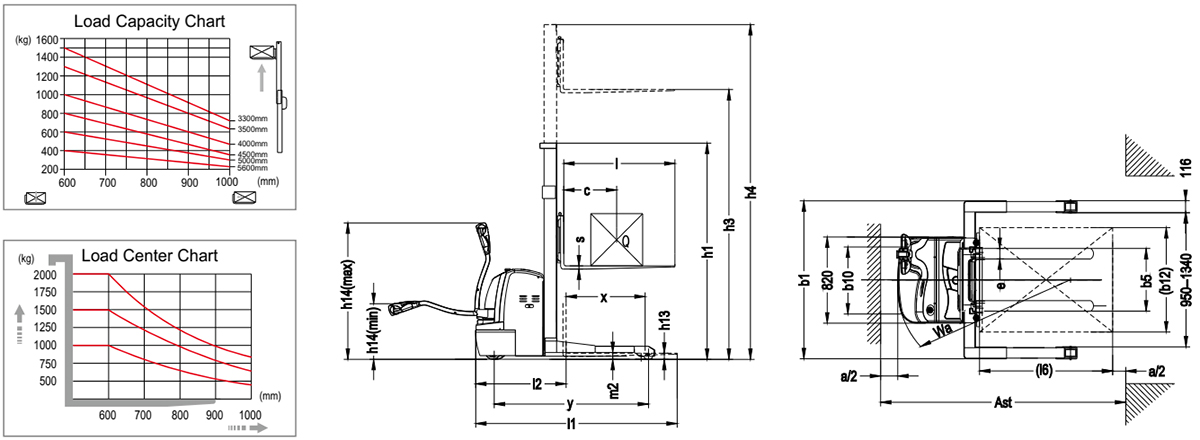
CTDR15-I / CTDR15-II

ESTRUCTURAL Y SEGURIDAD:

  • Sistema de control de CA avanzado sistema de freno regenerativo inteligente.
  • Display multifunción con BDI y contador de horas.
  • Dispositivo de marcha atrás de emergencia.
  • El sistema de desaceleración automática utiliza frenado regenerativo.
  • La válvula de alivio de presión incorporada protege los camiones de sobrecargas.
  • Interruptor de desconexión de energía de emergencia.
  • Control de velocidad continuo.
  • Con interruptor de límite de elevación para apagar el motor de la bomba a la altura máxima de elevación.
  • Sistema de motor de accionamiento de pie de radio de giro pequeño, estructura de motor a prueba de agua y polvo

UTILIDAD:

  • La tecnología reduce la complejidad del cableado.
  • Batería lateral con sistema desplegable, conveniente para reemplazo

Especificaciones Técnicas

Modeloo
CTDR15-I
CTDR15-II
Capacidad de carga / carga nominal
Q (kg)
1500
1500
Distancia del centro de carga
c (mm)
600
600
Distancia de carga, centro del eje motriz a la horquilla
x (mm)
677
677
Altura de la horquilla, bajada
h13 (mm)
70
70
Tamaño del neumático, delantero
mm
φ250 × 70
φ250 × 70
Tamaño del neumático, trasero
mm
φ80 × 84
φ80 × 84
Ruedas adicionales (dimensiones)
mm
φ150 × 60
φ150 × 60
Número de ruedas delanteras traseras (x = ruedas motrices)
1x 1/4
1x 1/4
Altura del mástil bajada
h1 (mm)
1805/2055/2205/2305/2120/2280/2480
Elevación libre (opción 2500 ~ 3500 mm)
h2 (mm)
1300/1550/1700/1800/1570/1740/1940
Altura máxima de elevación
h3 (mm)
2500/3000/3300/3500/4500/5000/5600
Altura del mástil extendida
h4 (mm)
3025/3525/3825/4025/5080/5560/6160
Altura mínima / máxima del timón en posición de conducción
h14 (mm)
670/1300
670/1300
Longitud total
l1 (mm)
1980
1980
Longitud hasta la cara de las horquillas
l2 (mm)
915
915
Ancho total
b1 (mm)
1170-1560
1170-1560
Dimensiones de la horquilla
s / e / l (mm)
35/100/1070 (1150)
35/100/1070 (1150)
Ancho total de las horquillas
b5 (mm)
200-800
200-800
Ancho de pasillo para palets 800x1200 longitudinalmente
Ast (mm)
2465
2465
Radio de giro
Wa (mm)
1610
1610
Velocidad de desplazamiento, con / sin carga
Km / h
5,8 / 6
5,8 / 6
Velocidad de elevación, cargada / descargada
m/s
0-0,16 / 0-0,24
0,12 / 0,16
Velocidad de descenso, cargada / descargada
m/s
0-0,39 / 0-0,26
0,14 / 0,19
Voltaje de la batería, capacidad nominal K5
V / Ah
24/300
24/240
Peso de la batería
kg
260
220
Dimensiones de la batería l / w / h
mm
675x248x500
675x248x500
Peso de servicio (con batería)
kg
1090/1210/1230 /
1250/1415/1460/1500
1040/1160/1170 /
1200/1375/1410/1450
Imagen de soporte
¿Interesado en este equipo?

Solicita más información

Contáctanos para obtener más detalles sobre este equipo, solicitar una cotización o agendar una demostración.